賃貸物件
管理番号:ize016、物件名:イーナスBLD
| 所在地 | 山形市七日町2丁目 |
|---|---|
| 賃料 | 20万円 |
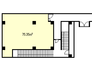
| タイプ | 1フロアー(75.35m2 22.39坪) |
| 敷金 | 6ヶ月 |
| 礼金 | |
| 駐車場 | 無し |
| 構造/所在階/建物階 | 鉄骨造/2階/3階建 |
| 築年 | - |
| 交通 | 七日町大沼デパート前バス停徒歩1分 |
| 設備 | |
| セールスポイント | 山形市随一の繁華街に立地 大沼デパート、7プラザなど商業施設が立ち並ぶ人通りは山形で尤も多い場所 |
| 入居日 | 相談 |
| 備考 | 詳細条件等は、お問合せ下さい。 |
| 取引形態 | 仲介 |
地図
物件画像


| 所在地 | 山形市七日町2丁目 |
|---|---|
| 賃料 | 20万円 |
| タイプ | 1フロアー(75.35m2 22.39坪) |
| 敷金 | 6ヶ月 |
| 礼金 | |
| 駐車場 | 無し |
| 構造/所在階/建物階 | 鉄骨造/2階/3階建 |
| 築年 | - |
| 交通 | 七日町大沼デパート前バス停徒歩1分 |
| 設備 | |
| セールスポイント | 山形市随一の繁華街に立地 大沼デパート、7プラザなど商業施設が立ち並ぶ人通りは山形で尤も多い場所 |
| 入居日 | 相談 |
| 備考 | 詳細条件等は、お問合せ下さい。 |
| 取引形態 | 仲介 |

